今年暑期,三明学院“闽台乡土微景观营造学社项目驱动班”暑期社会实践团队赴尤溪县桂峰村、清流县东坑村提取书院DNA特色元素,将其转译重构在明溪县梓口坊村观鸟点落地作品中,用专业所学助力乡村振兴。

实践队在三明尤溪朱子文化园对南溪书院进行测绘
探寻书院,感受传统文脉
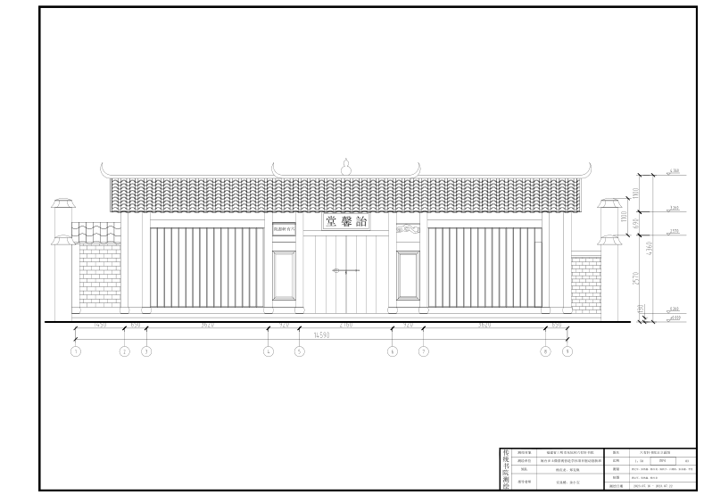
近期,三明学院“闽台乡土微景观营造学社项目驱动班”暑期社会实践团队前往福建省三明市尤溪县桂峰村、清流县东坑村,对隐藏在山林僻静之处的南溪书院、玉泉书斋、琢玉书院、卧云山书院等17座书院进行实地调研,挖掘书院建筑DNA元素,寻回失去的文化记忆。实践队对书院进行整体测绘,利用现代技术在还原场地基础上对测绘数据进行草图与CAD的转化,数字化修复书院空间,以空间更新的形式保留书院记忆,共制作形成CAD图纸50余份,建立书院SU模型15个。

玉泉书斋SU模型图

六有轩书院CAD图
传统书院是古人先贤遗传下的文化瑰宝,是一部记载着传统文化历史的“百科全书”,其在建筑空间建构、景观风貌和建筑装饰上都独具特色,体现出古人将读书与忠孝合为一体的正心修身齐家治国理念及天人合一、道法自然的原始生态美学,但由于缺少保护主体、难以满足需求及遭受自然灾害等原因,大量书院处于无人管理,年久失修、被废弃的状态,整体情况堪忧,实践队将尽己所能用专业所学为传统书院保护奉献绵薄之力。
躬身地头,落地特色作品
实践团队在带队老师的指导下,总结梳理出三明尤溪县桂峰村、清流县东坑村17座书院特色元素,结合三明明溪县梓口坊村清水湾生态环境及建筑功能,将梁柱间架结构、门楼、斗拱、翘角、花托、雕花、意境的含蕴等书院DNA元素重构融入“梧竹小筑”观鸟点微景观营造作品中。建筑主要使用木材、竹材和茅草建造而成,高约6米,宽约4米,长约7.5米,周边运用竹子、砖瓦、石子、石头进行造景,营造天人合一、道法自然的原始生态,建筑入口匾额、牌楼以及花托等部件由书院DNA元素转译而来,释放出浓浓的传统文化气息,精致的木质板材能够很好地适应天气状况,为这个几何形式创造出柔软、自然的立面效果。
在实践中,队员们亲自动手拉石子、拌砂浆,助力完成“梧竹小筑”观鸟点微景观作品施工落地,将原本杂草丛生、堆满垃圾的荒山地块变为集科普、环境保护、休闲、观赏为一体的观鸟亭,体现了专业性和文化味,得到乡政府和村民的广泛认同点赞。

“梧竹小筑”观鸟点SU模型图
数字赋能,拓宽育人渠道
在这个科技进步日新月异的时代,互联网、云计算、大数据等现代信息技术深刻改变着人类的思维、生产、生活、学习方式。社会实践是学生厚植爱国情怀、坚定理想信念和提升综合素养的重要途径,通过走出校门、走向社会,亲身体悟的形式使学生受教育、长才干、作贡献,促进自身能力与全面素质的提高。
实践团队主动适应数字化、智能化、终身化、融合化发展趋势,深入挖掘本次社会实践中的思政元素,融入吃苦耐劳、勇于创新、甘于奉献的精神,运用信息技术手段设计开发“闽台乡土微景观营造学社”微信小程序,将团队乡村足迹、50余份设计CAD图纸、落地作品以及实践动态成体系展示,用生动实践案例、丰富实践成果感染大学生,吸引更多青年学子加入实践队伍,拓宽受益青年学生群体。截至目前,团队已完成小程序开发,正在申请上线。
本次暑期社会实践,三明学院“闽台乡土微景观营造学社项目驱动班”致力于发挥高校服务地方和智库优势,将课堂与论文搬到乡村大地,用专业知识和学生创新活力赋能乡村振兴。
来源:学习强国 2023-09-12
链接网址:
https://article.xuexi.cn/articles/index.html?art_id=12469517372894877937&t=1694563916743&showmenu=false&cdn=https%3A%2F%2Fregion-fujian-resource&study_style_id=feeds_opaque&source=share&share_to=wx_single&item_id=12469517372894877937&ref_read_id=0E1DC885-1E6B-4C10-B934-E6AC46EE884C

